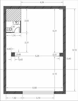
72m2
1
Opt.
Local comercial o Despatx de 72m² construïts en edifici de nova construcció, situat a Barcelona al carrer Ramon Berenguer el Vell, al costat del Museu Marítim de les Drassanes.
Local totalment diàfan pel desenvolupament de qualsevol activitat comercial.
DescripcióEspai totalment diàfan
1 Lavabo
AcabatsPaviment de granet nacional
Equipament i ServeisPersiana d’entrada motoritzada
Comunicacions
Metro L2 (Paral·lel) / L3 (Drassanes)
Autobus 20-21-36-57-64-120-157
Aeroport de Barcelona a 10 Km
Rondes a <1 Km
| Condicions LLOGUER | ||
|---|---|---|
| Durada Contracte | Despeses Generals | Preu |
| 5-10 Anys | 50 € | Llogat |









